
国际品质 环保节能
德国及欧洲最先进的壁挂炉技术
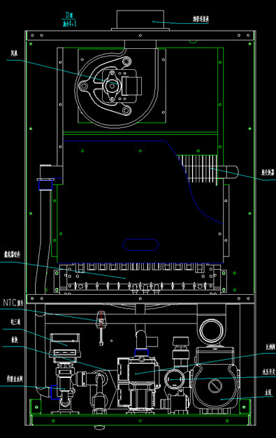
产品特点:
35KW大功率豪华型欧款板换式两用机,采暖洗浴自动切换,经典彩屏人性化显示,欧式燃烧室、比例恒温、智能分段定时,欧洲进口排气泵,高效主热交换器和板换式热交换器,背挂扁圆型膨胀罐。采暖面积为:<300㎡。
技术参数:
产品型号:JLG35-BH
额定热负荷:35KW
额定供热输出:31KW
额定产热水能力(升温25K时出热水量):17.5kg/min
参考供暖面积:<300m2
适用水压:供暖系统0.05-0.3MPa 洗浴回路0.05-0.6MPa
供暖水循环方式:背挂水箱密闭式
水温调节范围:供暖出水40~80°C 洗浴出水30~60°C
热效率 理想工况:>85-95%
电参数 额定电功率:110W AC220V/50Hz
重量(kg):45
外形尺寸 (mm):750x460x335
排烟管外径、内径(mm):Φ100/Φ60
给排气方式:强制给排气式
配管规格:卫生进出水咀G1/2" 进气咀G3/4" 采暖供回水咀G3/4"
燃气额定电力:天然气2000Pa

