

国际品质 环保节能
德国及欧洲最先进的壁挂炉技术。
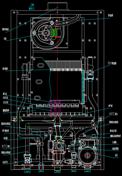
产品特点:
24KW豪华套管式两用机,采暖洗浴自动切换,彩屏人性化显示,欧式燃烧室、比例恒温、4分段定时,进口自动排气泵,高效复合热交换器,背挂扁圆型膨胀罐。采暖面积为:<170m2。
技术参数:
产品型号:JLG24-BTB
额定热负荷:24KW
额定供热输出:21.3KW
额定产热水能力(升温25K时出热水量):12kg/min
参考供暖面积:<170m2
适用水压:供暖系统0.05-0.3MPa 洗浴回路0.05-0.6MPa
供暖水循环方式:背挂水箱密闭式
水温调节范围:供暖出水40~80°C 洗浴出水30~60°C
热效率 理想工况:>85-95%
电参数 额定电功率:110W AC220V/50Hz
重量(kg):40
外形尺寸 (mm):750x440x330
排烟管外径、内径(mm):Φ90/Φ60
给排气方式:强制给排气式
配管规格:卫生进出水咀G1/2" 进气咀G3/4" 采暖供回水咀G3/4"
燃气额定电力:天然气2000Pa

